Nieuw in verkoop:Princesseplaat 24, 4617 LB Bergen op Zoom - Foto
Nieuw in verkoop
+38

Princesseplaat 24 4617 LB Bergen op Zoom € 550.000,- k.k.

  • Woonhuis
  • 7 kamers
  • 6 slaapkamers
  • 1 badkamers
  • Bouwjaar 1994
  • 128 m² perceeloppervlakte
  • 142 m² gebruiksoppervlakte
  • A Energielabel A

Beschrijving

INSTAPKLARE TUSSENWONING MET 4 WOONLAGEN, 5 SLAAPKAMERS, 2 DAKKAPELLEN, 12 ZONNEPANELEN EN MODERNE AFWERKING

Deze ruime en instapklare tussenwoning aan de Princesseplaat 24 biedt maar liefst vier woonlagen, vijf slaapkamers en de mogelijkheid tot een zesde slaapkamer op zolder. De woning is modern afgewerkt met laminaatvloeren en strak gestucte wanden en plafonds en beschikt over twee dakkapellen, een stijlvolle overkapping en 12 zonnepanelen voor lagere energielasten. Dankzij de royale indeling en extra ruimtes is deze woning ideaal voor grote gezinnen, thuiswerkers of hobbyisten.

De woning is gelegen in de gewilde wijk Bergse Plaat, op korte afstand van het water. Daarnaast bevindt de woning zich op loopafstand van winkelcentrum Het Kompas, nabij basisschool Lodijke en kinderopvang. Het centrum van Bergen op Zoom, het treinstation en diverse uitvalswegen zijn bovendien binnen enkele minuten bereikbaar.

Bijzonderheden:
- Instapklare tussenwoning;
- Energielabel: A;
- Vier woonlagen;
- Twee geplaatste dakkapellen aan de achterzijde;
- 12 zonnepanelen;
- Houten kozijnen;
- Moderne cinewall met sfeerhaard;
- Houten schuifpui met rolluik;
- Moderne keuken met complete inbouwapparatuur;
- Vijf slaapkamers (mogelijkheid tot zes);
- Moderne badkamer met dubbele wastafel;
- Onderhoudsvriendelijke tuin met moderne overkapping;

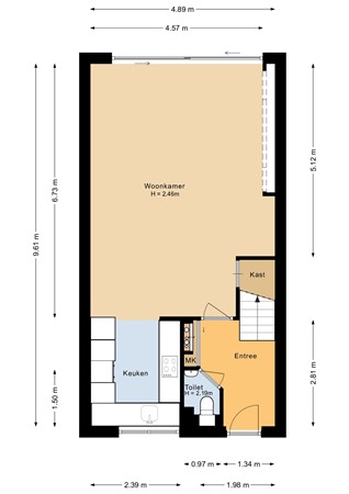
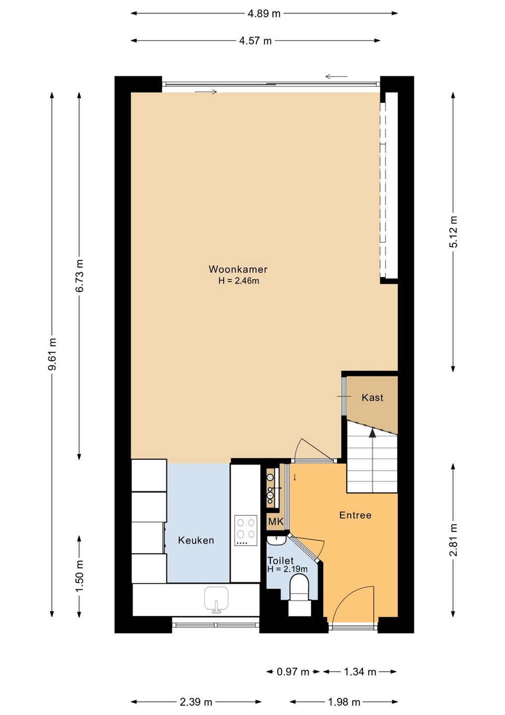
Eerste verdieping (betonnen vloer)
De overloop is afgewerkt met een laminaatvloer en gestucte wanden en plafond en geeft toegang tot twee slaapkamers en de badkamer.

De masterbedroom bevindt zich aan de achterzijde en is dankzij de geplaatste dakkapel heerlijk ruim. De extra ruimte en lichtinval zorgen voor een comfortabele en aangename slaapkamer. De kamer is voorzien van een laminaatvloer en gestucte wanden en plafond en biedt voldoende plaats voor een groot bed en een royale kledingkast.

De tweede slaapkamer aan de voorzijde is eveneens ruim opgezet en voorzien van een laminaatvloer, gestucte wanden en plafond en beschikt over een rolluik. De moderne badkamer is volledig betegeld en voorzien van een gestucte plafond. De badkamer beschikt over een dubbele wastafel met meubel, een ruime douchecabine en een designradiator. De indeling is praktisch en biedt voldoende comfort voor dagelijks gebruik door meerdere gezinsleden.

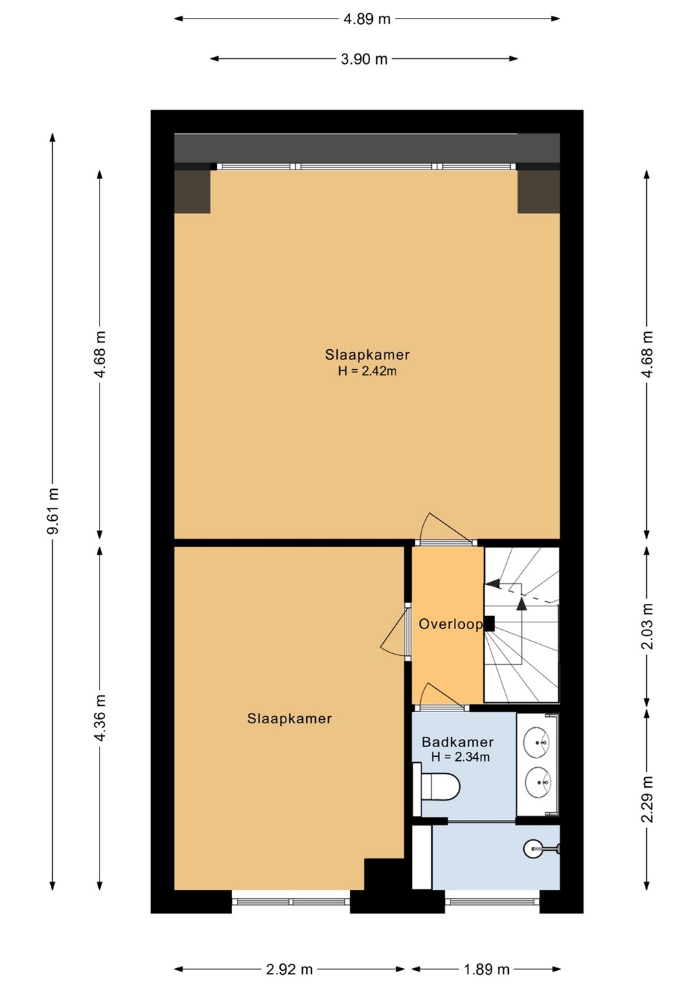
Tweede verdieping (betonnen vloer)
Via de vaste trap bereikt u de tweede verdieping. De overloop is voorzien van een laminaatvloer en gestucte wanden en plafond en geeft toegang tot drie slaapkamers.

De derde slaapkamer aan de rechterzijde is extra ruim dankzij de tweede geplaatste dakkapel en afgewerkt met een laminaatvloer en gestucte wanden en plafond. Deze kamer kan uitstekend dienen als ruime slaapkamer of als werk- of hobbyruimte.

De vierde slaapkamer aan de linkerzijde is eveneens voorzien van een laminaatvloer en gestucte wanden en plafond.

De vijfde slaapkamer is iets compacter, maar eveneens netjes afgewerkt met laminaat en gestucte wanden en plafond. Deze ruimte is ideaal als kinderkamer, kastenkamer of studeerplek.

Derde verdieping (betonnen vloer)
De derde verdieping betreft een ruime zolderverdieping met laminaatvloer en gestucte wanden en plafond. Deze open ruimte biedt volop mogelijkheden en kan uitstekend dienen als zesde slaapkamer, hobbyruimte, fitnessruimte of thuiswerkplek. Hier bevinden zich tevens de aansluitingen voor de wasmachine en droger, evenals de opstelplaats van de cv-ketel.

TUIN
De woning beschikt over een onderhoudsvriendelijke tuin die direct bereikbaar is via de houten schuifpui met rolluik. De tuin is verzorgd aangelegd en voorzien van een moderne overkapping. Hierdoor kunt u al vroeg in het voorjaar en tot laat in het najaar comfortabel buiten zitten. De combinatie van bestrating en groen zorgt voor een prettige balans tussen gemak en sfeer. Het is een fijne plek om te ontspannen, te spelen of gezellig samen te komen.

Disclaimer
Deze informatie is met zorg samengesteld. Aan de inhoud kunnen geen rechten worden ontleend. Alle opgegeven maten en gegevens zijn indicatief. Een koopovereenkomst komt pas tot stand na ondertekening door beide partijen.

Kaart

Kenmerken

Overdracht

Referentienummer
141
Vraagprijs
€ 550.000,- k.k.
Status
Nieuw in verkoop
Aanvaarding
In overleg
Aangeboden sinds
Woensdag 11 maart 2026

Bouw

Type object
Woonhuis, eengezinswoning, tussenwoning
Soort bouw
Bestaande bouw
Bouwperiode
1994
Type dak
Zadeldak
Isolatievormen
Dakisolatie
Dubbel glas
Muurisolatie
Vloerisolatie

Oppervlaktes en inhoud

Perceeloppervlakte
128 m²
Woonoppervlakte
142 m²
Inhoud
471 m³
Oppervlakte externe bergruimte
6 m²

Indeling

Aantal bouwlagen
4
Aantal kamers
7 (waarvan 6 slaapkamers)
Aantal badkamers
1 (en 1 apart toilet)

Locatie

Ligging
In woonwijk

Tuin

Type
Achtertuin
Hoofdtuin
Ja
Oriëntering
Noorden
Staat
Normaal
Tuin 2 - Type
Voortuin
Tuin 2 - Oriëntering
Zuiden
Tuin 2 - Staat
Normaal

Energieverbruik

Energielabel
A

CV ketel

CV ketel
Nefit CW5
Warmtebron
Gas
Bouwjaar
2015
Eigendom
Eigendom

Uitrusting

Warm water
CV-ketel
Verwarmingssysteem
Centrale verwarming
Keukenvoorzieningen
Inbouwapparatuur
Badkamervoorzieningen
Douche
Dubbele wastafel
Toilet
Wastafelmeubel
Tuin aanwezig
Ja
Heeft schuur/berging
Ja
Heeft een schuifpui
Ja
Heeft zonnepanelen
Ja

Kadastrale gegevens

Kadastrale aanduiding
Bergen op Zoom M 482
Perceeloppervlakte
128 m²
Eigendomsituatie
Eigen grond

Brochure(s) en overige bijlagen

Brochure Princesseplaat 24.pdf Download