Nieuw in verkoop:Koning Willem II straat 38, 4611 LE Bergen op Zoom - Foto
Nieuw in verkoop
+27

Koning Willem II straat 38 4611 LE Bergen op Zoom € 329.000,- k.k.

  • Belegging
  • Bouwjaar 1935
  • 99 m² perceeloppervlakte
  • 102 m² vloeroppervlakte
  • B Energielabel B

Beschrijving

BELEGGINGSOBJECT MET 2 BADKAMERS AAN DE KONING WILLEM II STRAAT 38

Deze gesplitste eengezinswoning aan de Koning Willem II Straat 38 betreft een tussenwoning met vloerisolatie en een praktische indeling met onder andere twee badkamers en een multifunctionele bovenverdieping. De woning is grotendeels voorzien van laminaatvloeren, vloerbedekking op de verdieping en strak gestucte wanden en plafonds, wat zorgt voor een nette en verzorgde uitstraling.

Bijzonderheden:
- Gesplitste boven en benedenwoning
- Vloerisolatie aanwezig
- Combi ketel Remeha 2012
- Twee badkamers
- Bijkeuken met extra mogelijkheden
- Zelfstandige bovenverdieping met keuken en badkamer
- Onderhoudsvriendelijke tuin
- BAR ≈ 9%
- NAR ≈ 8,8%

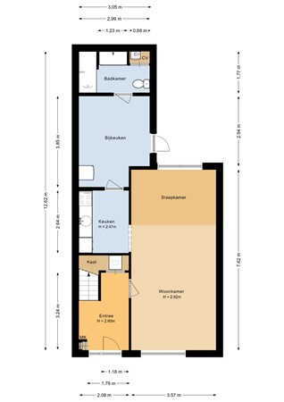
INDELING
Begane grond
De entreehal is voorzien van een laminaatvloer en gestucte wanden en plafond, Vanuit de hal is er toegang tot de trap naar de zelfstandige bovenverdieping, de meterkast heeft 9 groepen 2 aardlekken, de opstelplaats van de boiler en de wasmachine, evenals de toegang tot de benedenwoning.

De woonkamer is afgewerkt met een laminaatvloer en gestucte wanden en plafond. De ruimte is praktisch ingedeeld en beschikt over een ruime eethoek, waardoor er voldoende ruimte is voor een eettafel en eventueel een slaapgedeelte. Dankzij de prettige lichtinval voelt de woonkamer aangenaam en open aan.

De keuken is voorzien van een laminaatvloer en gestucte wanden en plafond. De keuken beschikt over diverse inbouwapparatuur, zoals magnetron en oven appart van elkaar en een schouwmodel afzuigkap.

Vanuit de keuken is er toegang tot de bijkeuken. Deze ruimte is eveneens voorzien van een laminaatvloer en gestucte wanden en plafond. Er is voldoende ruimte om hier bijvoorbeeld een extra eethoek, werkruimte of extra opslag te realiseren.
Via de bijkeuken is de tweede badkamer bereikbaar. Deze badkamer is volledig betegeld en voorzien van een gestuct plafond met mechanische ventilatie. De ruimte beschikt over een bad-/douchecombinatie. Tevens bevindt zich hier een kast met toegang tot de cv-ketel. Deze extra badkamer op de begane grond biedt veel comfort en flexibiliteit in gebruik.

Eerste verdieping
Via de trap bereikt u de overloop op de verdieping. Deze geeft toegang tot een zelfstandige woonruimte met eigen keuken en één slaapkamer. De gehele verdieping is voorzien van vloerbedekking en gestucte wanden en plafond, wat zorgt voor een nette en warme uitstraling.

De aanwezige keuken maakt deze verdieping extra praktisch en geschikt voor diverse doeleinden.

De slaapkamer op deze verdieping is ruim opgezet en biedt voldoende plaats voor een bed en kastruimte. Vanuit de slaapkamer is er toegang tot de badkamer.

De badkamer is volledig betegeld en voorzien van een gestuct plafond. Deze beschikt over een wastafel en een bad-/douchecombinatie. De indeling is functioneel en compleet, waardoor deze verdieping volledig zelfstandig te gebruiken is.

TUIN
De tuin is voorzien van een terras en is omheind met stenen erfafscheiding. De afwerking is verzorgd en van normale, degelijke kwaliteit. De tuin biedt voldoende ruimte om een zitgedeelte te creëren en te genieten van het buitenleven. Dankzij de praktische indeling is het een fijne plek om te ontspannen of gezellig samen te komen.

Disclaimer
Deze informatie is met zorg samengesteld. Aan de inhoud kunnen geen rechten worden ontleend. Alle opgegeven maten en gegevens zijn indicatief. Een koopovereenkomst komt pas tot stand na ondertekening door beide partijen.

Kaart

Kenmerken

Overdracht

Referentienummer
148
Vraagprijs
€ 329.000,- k.k.
Rendement
10%
Status
Nieuw in verkoop
Aanvaarding
In overleg
Aangeboden sinds
Maandag 9 maart 2026

Bouw

Type object
Belegging, Woninginvesteringen
Soort bouw
Bestaande bouw
Bouwperiode
1935

Oppervlaktes en inhoud

Perceeloppervlakte
99 m²
VVO
102 m²

Locatie

Ligging
Aan rustige weg

Energieverbruik

Energielabel
B

Kadastrale gegevens

Kadastrale aanduiding
Bergen op Zoom H 3466
Perceeloppervlakte
99 m²
Eigendomsituatie
Eigen grond

Brochure(s) en overige bijlagen

Koning Willem II straat 38.pdf Download